auftragsspektrum
leistungsbild
referenzen
porträt
kontakt
download
anfahrt
impressum
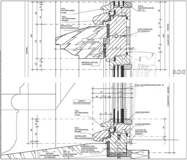
Bremer Landesbank, Bremen Leitdetail Fenster in Klinkerfassade, Anschluss Fensterbank
Bremer Landesbank,
Bremen
Leitdetail
Fenster in Klinkerfassade, Anschluss Fensterbank
zurück weiter
zurück
startseite